Couvercle de montage 250 pour unités de montage de taille nominale 9

Réf. 7400467 | EAN 4012195431275

Description du produit
Description du produit
Couvercle de montage pour boîtes de tirage et de dérivation sous plancher de type UZD250-3/4 pour le montage d'une unité de montage de taille nominale 9. Ouverture de montage évidée de 3 mm pour la fermeture ultérieure totale à l'aide d'une plaque d’obturation.
  • Verband der Elektrotechnik, Elektronik, Informationstechnik e.V., Allemagne
  • Communautés Européennes, Déclaration de conformité CE selon les directives CE
  • Déclaration de conformité UKCA
  • Empreinte CO₂ (PCF)
Caractéristiques techniques

Caractéristiques techniques

Compatible avec le conduit fermé affleurant avec la chape non
Compatible avec le conduit noyé dans la chape oui
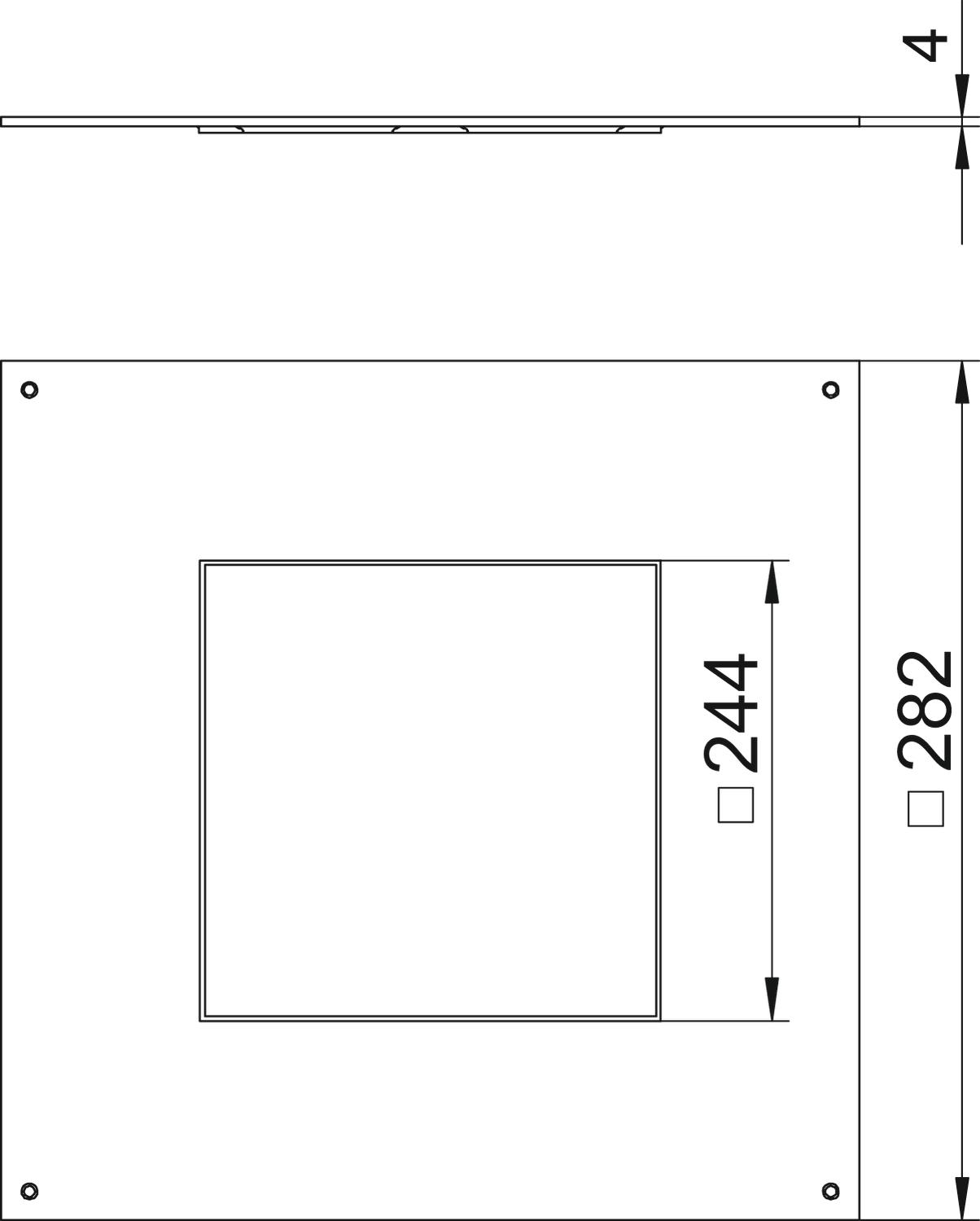
Cote a 244 mm
Cote A 282 mm
Couvercle Ouverture de montage non
Dimension 282x282x4
Dimension nominale 250 mm
Dimension nominale pour boîtier d'appareillages 9
Empreinte CO2 (GWP) du berceau à la porte 5,6116 kg CO2e / 1 Pièce
Entretien du sol sécher
Épaisseur du matériau 4 mm
Hauteur 4 mm
Largeur 282 mm
Largeur de goulotte max. 250 mm
Largeur de goulotte min. 190 mm
Longueur 282 mm
Matériau Acier
Modèle pour charges lourdes non
Ouverture de montage carré
Ouverture de montage pour réservoir en saillie non
Possibilité d'installation du joint non
Surface galvanisé par bande
Tous les types

Tous les types

Type Ouverture de montage Réf. Quantité Plus petite unité de vente
DUG 250-3 9 carré 7400467
1 Pièce
DUG 350-3 9 carré 7400513
1 Pièce
DUG 350-3 R9 rond 7400549
1 Pièce
Téléchargements

Télécharger

Déclaration de conformité UE DUG 250-3 9 / 7400467 , 0.19MB , pdf
Télécharger
Déclaration de conformité du Royaume-Uni DUG 250-3 9 / 7400467 , 0.10MB , pdf

Aucun texte d'appel d'offres n'est disponible pour ce produit