Échelle à câbles SLCS 110, 6 m C30 FT

Réf. 6207322 | EAN 4012196431953

3000 mm
2 mm
non
Description du produit
Description du produit
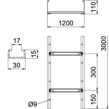
Échelle à câbles d'une hauteur d'aile de 110 mm avec échelons soudés à profilé C30 ouvert vers le haut. Longeron latéral enroulé pour le renforcement et la protection des bords. La fixation sur console s'effectue avec des pièces de serrage de type LKS 40. La fente de l'échelon mesure 16,5 mm. La bride de fixation correspondante est de type 2056.
Atténuation magnétique du blindage sans couvercle 10 dB, avec couvercle 15 dB.
  • Communautés Européennes, Déclaration de conformité CE selon les directives CE
  • Déclaration de conformité UKCA
  • Échelles à câbles, hauteur d'aile 110 mm
  • Déclaration environnementale de produits (EPD)
  • Empreinte CO₂ (PCF)
Caractéristiques techniques

Caractéristiques techniques

Acier inoxydable, teint non
Cote B 1100 mm
Couleur zinc
Dimension 110x1200x3m
Distance entre support 4,0m 1 kN/m
Distance entre support 5,0m 0,8 kN/m
Distance entre supports 2,0m 3,5 kN/m
Distance entre supports 3,0m 1,9 kN/m
Distance par rapport au support 6,0m 0,25 kN/m
Écart entre échelons 300 mm
Empreinte CO2 (GWP) du berceau à la porte 17,8396 kg CO2e / 1 Mètre
Épaisseur de longeron 2 mm
Fixation des échelons soudé
Hauteur 110 mm
Largeur 1200 mm
Longueur 3000 mm
Maintien en fonction non
Matériau Acier
Modèle de longeron latéral profilé plat
Modèle des échelons Profilé non perforé
Modèle longue portée non
Perforation latérale oui
Section utile 118000 mm²
Section utile 1180 cm²
Surface galvanisé à chaud par trempage

Caractéristiques techniques

Diagramme de charge de l'échelle à câbles type SLCS 110

Diagramme de charge de l'échelle à câbles type SLCS 110
  • Charge de chemins de câbles/d'échelles à câbles en kN/m sans charge d'homme Charge de chemins de câbles/d'échelles à câbles en kN/m sans charge d'homme
  • Portée en m Portée en m
  • Déflexion de l'aile en mm avec kN/m autorisé Déflexion de l'aile en mm avec kN/m autorisé
  • Schéma de charge pour le procédé de contrôle Schéma de charge pour le procédé de contrôle
  • Courbe de charge avec largeur du chemin de câbles/de l'échelle à câbles en mm Courbe de charge avec largeur du chemin de câbles/de l'échelle à câbles en mm
  • Courbe de déflexion de l'aile en fonction de l'écartement Courbe de déflexion de l'aile en fonction de l'écartement
Tous les types

Tous les types

Type Longueur Largeur Épaisseur de longeron Maintien en fonction Réf. Quantité Plus petite unité de vente
SLCS 1120 3 FT 3000 mm 200 mm 2 mm non 6207302
3 m
SLCS 1130 3 FT 3000 mm 300 mm 2 mm non 6207304
3 m
SLCS 1140 3 FT 3000 mm 400 mm 2 mm non 6207306
3 m
SLCS 1150 3 FT 3000 mm 500 mm 2 mm non 6207310
3 m
SLCS 1160 3 FT 3000 mm 600 mm 2 mm non 6207312
3 m
SLCS 1175 3 FT 3000 mm 750 mm 2 mm non 6207314
3 m
SLCS 1180 3 FT 3000 mm 800 mm 2 mm non 6207316
3 m
SLCS 1190 3 FT 3000 mm 900 mm 2 mm non 6207318
3 m
SLCS 11100 3 FT 3000 mm 1000 mm 2 mm non 6207320
3 m
SLCS 11120 3 FT 3000 mm 1200 mm 2 mm non 6207322
3 m
Téléchargements

Télécharger

Déclaration de conformité UE SLCS 11120 3 FT / 6207322 , 0.10MB , pdf
Télécharger
Déclaration de conformité du Royaume-Uni SLCS 11120 3 FT / 6207322 , 0.09MB , pdf
Déclaration environnementale de produits (EPD) SLCS 11120 3 FT / 6207322 , 1.48MB , pdf
Télécharger

Télécharger

Aucun texte d'appel d'offres n'est disponible pour ce produit