Goulotte coupe-feu PYROLINE® Con S EI90

Réf. 7217874 | EAN 4012196836673

1000 mm
Description du produit
Description du produit
Goulotte coupe-feu composée de béton allégé armé de fibres de verre résistant à l'humidité et au gel de la classe A1 selon EN 13501-1 relative à la pose coupe-feu de câbles dans des voies d'évacuation et issues de secours. Classification EI90 comme goulotte d’installation conformément à la norme EN 13501-2 sur la base des essais conformément à la norme EN 1366-5 En cas de charge combustible à l'intérieur (feu de câble), la goulotte empêche la propagation du feu à une autre section par le câble

Montage de la goulotte sur des consoles murales ou comme montage au plafond avec des pendards et des consoles ou sur un profilé en U suspendu par des tiges filetées. Des éclisses d'assemblage prêtes à installer permettent un assemblage rapide des éléments de conduit sur site, et les couvercles simplement posés permettent une inspection et un câblage ultérieur rapides.
  • Communautés Européennes, Déclaration de conformité CE selon les directives CE
Caractéristiques techniques

Caractéristiques techniques

Avec perforation non
Classification EI - Goulotte de montage 90
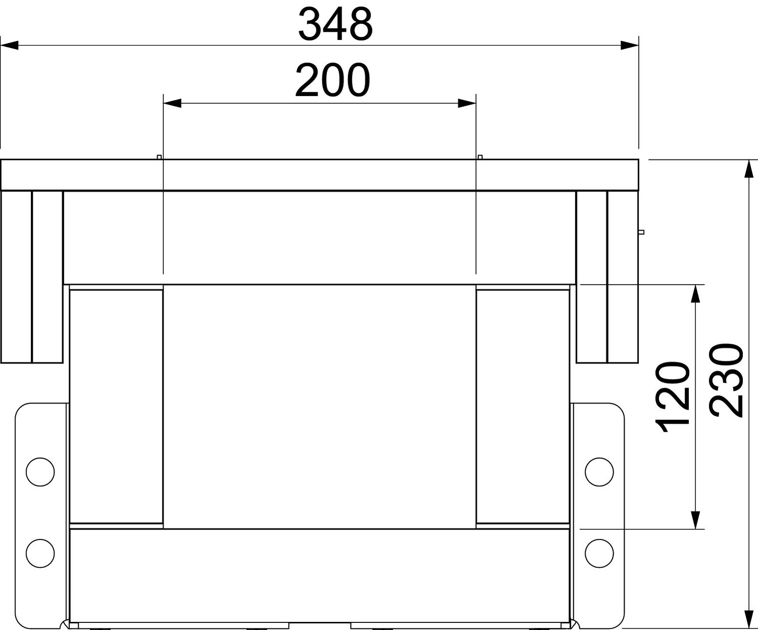
Cote b 200 mm
Cote B 348 mm
Couleur gris
Dimension 1000x200x120
Dimension h 120 mm
Dimension H 230 mm
Fixation du couvercle desserrer
Gaine sans
Longueur 1000 mm
Matériau Béton léger à base de fibres de verre
Matériau de l'isolant Béton léger à base de fibres de verre
Nombre de faces résistantes aux flammes 4
Tous les types

Tous les types

Type Longueur Cote B Cote b Dimension H Dimension h Réf. Quantité Plus petite unité de vente
PLCS D090810 1000 mm 248 mm 100 mm 190 mm 80 mm 7217870
1 m
PLCS D091220 1000 mm 348 mm 200 mm 230 mm 120 mm 7217874
1 m
Accessoires

Accessoires système

Produits Type Réf. Quantité Plus petite unité de vente
Coude à 90° EI90 pour goulotte coupe-feu PLCS D091220 Coude à 90° EI90 pour goulotte coupe-feu PLCS D091220 PLCS B091220 7217894
1 Pièce
Pièce en T EI90 pour goulotte coupe-feu PLCS D091220 Pièce en T EI90 pour goulotte coupe-feu PLCS D091220 PLCS T091220 7217914
1 Pièce
Coude vertical concave EI90 pour goulotte coupe-feu PLCS D091220 Coude vertical concave EI90 pour goulotte coupe-feu PLCS D091220 PLCS VR091220 7217934
1 Pièce
Coude vertical convexe EI90 pour goulotte coupe-feu PLCS D091220 Coude vertical convexe EI90 pour goulotte coupe-feu PLCS D091220 PLCS VF091220 7217954
1 Pièce
Embout d'extrémité EI90 pour goulotte coupe-feu PLCS D091220 Embout d'extrémité EI90 pour goulotte coupe-feu PLCS D091220 PLCS E091220 7217994
1 Pièce
Embase murale EI90 pour goulotte coupe-feu PLCS D091220 Embase murale EI90 pour goulotte coupe-feu PLCS D091220 PLCS W091220 7217974
1 Pièce
Pièce de doublage pour goulotte coupe-feu PYROLINE® Con Pièce de doublage pour goulotte coupe-feu PYROLINE® Con KAD-8040 7215464
1 Pièce
Pièce de doublage pour goulotte coupe-feu PYROLINE® Con Pièce de doublage pour goulotte coupe-feu PYROLINE® Con KAD-10040 7215462
1 Pièce
Mortier pour goulotte coupe-feu Mortier pour goulotte coupe-feu KTM 7215500
1 Pièce
Joint coupe-feu en cartouche Joint coupe-feu en cartouche DSX-K 7202300
1 Pièce
Cloison de séparation 45 FS Cloison de séparation 45 FS TSG 45 FS 6062033
3 m
Séparateur 60 FS Séparateur 60 FS TSG 60 FS 6062068
3 m
Séparateur 85 FS Séparateur 85 FS TSG 85 FS 6062114
3 m
Vis pour la fixation de séparateur, KRS 6x30 Vis pour la fixation de séparateur, KRS 6x30 KRS 6x30 3498100
200 Pièce
Téléchargements

Télécharger

Déclaration de conformité UE PLCS D091220 / 7217874 , 0.11MB , pdf
Télécharger
Déclaration de performance PLCS D091220 / 7217874 , 0.31MB , pdf
Télécharger

Aucun texte d'appel d'offres n'est disponible pour ce produit