Cassette à cadre pour trappe d'inspection, RK, taille nominale 250-2, acier inoxydable

Réf. 7406000 | EAN 4012195106258

Description du produit
Description du produit
Cassette à cadre pleine pour la réalisation d'une trappe d'inspection dans les boîtes UZD250-3 dans des planchers nettoyés à l'eau ou à sec en intérieur. Convient uniquement aux revêtements de sol lisses.
  • Verband der Elektrotechnik, Elektronik, Informationstechnik e.V., Allemagne
  • Communautés Européennes, Déclaration de conformité CE selon les directives CE
  • Empreinte CO₂ (PCF)
  • Emballage intégralement composé de carton recyclé
Caractéristiques techniques

Caractéristiques techniques

Charge verticale, grande surface jusqu'à 3 000 N
Charge verticale, petite surface jusqu'à 3 000 N
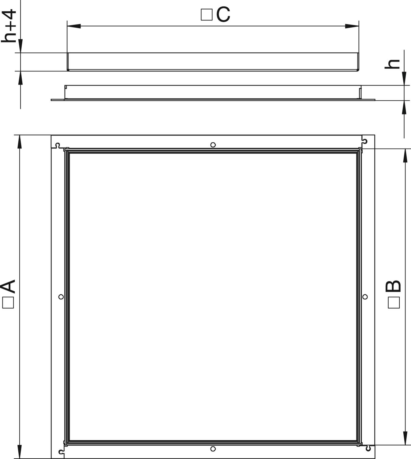
Cote A 324 mm
Cote B 288 mm
Cote C 282 mm
Dimension 282x282x10
Dimension h 10 mm
Empreinte CO2 (GWP) du berceau à la porte 18,2691 kg CO2e / 1 Pièce
Entretien du sol humide
Épaisseur du revêtement de sol 8 mm
Indice de protection (IP) en utilisation IP00
Indice de protection (IP) hors utilisation IP44
Matériau acier inoxydable 1.4301
Modèle Sortie de câble Aucune sortie de câble
Support d'appareillage pour le logement de paniers appareillage non
Tous les types

Tous les types

Type Dimension h Épaisseur du revêtement de sol Réf. Quantité Plus petite unité de vente
RK V2 10 10 mm 8 mm 7406000
1 Pièce
RK V2 15 15 mm 13 mm 7406004
1 Pièce
RK V2 20 20 mm 18 mm 7406008
1 Pièce
RK V2 25 25 mm 23 mm 7406012
1 Pièce
RK V2 30 30 mm 28 mm 7406016
1 Pièce
Téléchargements

Télécharger

Aucun texte d'appel d'offres n'est disponible pour ce produit